Nullaki.

The Nullaki is a remote peninsular in the wild and untouched Great Southern Region of Western Australia. The original owners of this land are the Menang cultural group of the wider Noongar region. Stretching out like a wing, the Nullaki shields the town of Denmark from the Southern Ocean, gallantly bearing the brunt of weather fronts as they are thrown towards the mainland. The cliffs on the ocean side of the Nullaki do much of the work, the rest of the land is remnant bushland with pockets of open sky over rolling grass hills dotted with farm fences.

Our client is custodian of 42 hectares on the Inlet side of the Nullaki. The block is zoned conservation, like much of the area, requiring a specialised flora and fauna report to ensure no endangered species or habitats would be affected by the development. We were approached to design something special. The brief entailed a holiday home that he, along with his friends and family, could freely enjoy for generations. Immersed in nature yet with comfort.

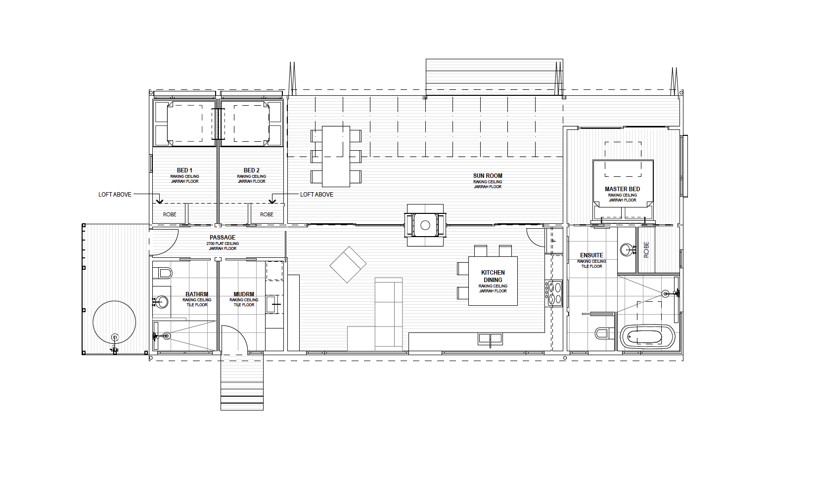
The rectilinear form, a tip of the hat to neighbouring farm buildings, is lifted off the ground allowing movements of land, water, and earth to remain undisturbed. We managed to fit two bedrooms with a loft each, a full master suite, an open kitchen, dining, living, a mudroom, bathroom, and a generous outdoor living into a modest 150sqm footprint. The house pivots around a central double-sided fire. This centralised mass, awards the fire the same value as if the inhabitants were camping.  Circulation, dining, food preparation, reading and discussions, all visually intwined by flames, bonded by the duty of feeding them. The interior is warm, lined with plywood and painted green walls, anchored by Jarrah flooring. Windows are double glazed with bronze anodized frames, touching on 70s holiday home nostalgia. The house is entirely off grid with a solar powered supply system. Rainwater is harvested from the roof with dominating, custom fabricated gutters, and downpipes, celebrating the journey of water with both size and colour as it passes through with plenty of room to swish and gurgle.

David’s family hold Japanese heritage, and he spent a large portion of his life in the country. From an early point, we bonded over a mutual respect and admiration for Japanese architecture. With this influence, the Nullaki house fundamentally encourages a minimalist way of life, connected to landscape.

Build Andrew Finnigan

Photography Olive Lipscombe “Peggy Voir”